|
VIGAS 80 (25-92 kW)takarékos, elektronikusan vezérelt faelgázosító kazán

Alap felszereltség:
-
AK4000 szabályozó
-
Füstgázhőmérséklet érzékelő
-
Befúvó ventilátor
-
Kazánköri keringető szivattyú vezérlés
-
Szobatermosztát, elszívó ventilátor csatlakoztatásának lehetősége
-
Bővítő modulok (EXPANDER) csatlakoztatásának lehetősége
-
Biztonsági hűtő hőcserélő
Előnyök:
-
Füstgázhőmérséklet alapján vezérelt égés, amely 60–65 % költség megtakarítást eredményez a hagyományos szilárdtüzelésű illetve gáz fűtési rendszerekhez képest.
-
A kazán magas, akár 88,5 %-os hatásfoka.
-
Alacsony, az előírtnál lényegesen kisebb károsanyag kibocsátás a tökéletes égésnek köszönhetően.
-
Könnyű, gyors tisztítás az eltávolítható elsődleges levegő járat által.
-
Az elgázosító kamra falainak rézsútos kialakítása a tökéletes tüzelőanyag felhasználás biztosítása érdekében.
-
Magas élettartam a belső részek hőálló, korróziógátló TERMOSIL védőréteggel történő kezelésének köszönhetően.
-
Samottal kibélelt égéstér a tökéletes égés biztosítása érdekében.
-
Vastag NOBASIL hőszigetelés a hővesztés megakadályozására.
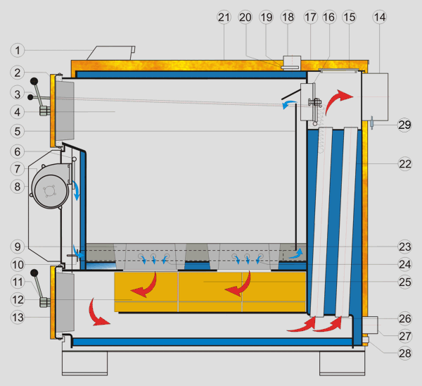
A kazán vázlata

- AK 3000 vezérlés
- Felső ajtó
- Kéménycsappantyú húzórúdja
- Elgázosító kamra
- Elsődleges levegő járat
- Csappantyú
- Ventilátor
- Ventilátor burkolat
- Hőállóbeton fúvóka
- Másodlagos levegő retesz
- Ajtózár
- Samott téglák
- Alsó ajtó
- Kéménytorok
- Hőcserélő fedele
- Befűtő csappantyú
- Felső hátulsó burkolat
- Előremenő víz torok
- Hőbiztosíték
- Kazánvíz hőérzékelő
- Felső elülső burkolat
- Hőcserélő csövezet
- Hőállóbeton falazat
- Másodlagos levegő
- Égéstér
- Füstgáz áramlás iránya
- Visszaforgatott víz torok
- Vízfeltöltő torok
- Füstgázhőmérséklet érzékelő
Műszaki adatok
|
A kazán EN 303-5 szerinti osztálya (hatásfok / kibocsátás)
|
|
3 / 3
|
|
Max. üzemi nyomás
|
bar
|
3
|
|
Tüzelőanyag
|
|
fa max. 20 % nedvességtartalomig, min. 15 MJ/kg fűtőértékkel
|
|
Teljesítmény tartomány
|
kW
|
25 - 92
|
|
Hatásfok
|
%
|
88,5
|
|
Tüzelőanyag fogyasztás névleges teljesítménynél
|
kg/ó
|
25
|
|
Helyettesítő tüzelőanyag
|
|
Fahulladék, faforgács, fűrészpor, fűrészporbrikett max. 20 % nedvességtartalomig
|
|
Kéményhuzat
|
mbar
|
0,30 – 0,40
|
|
Súly
|
kg
|
930
|
|
Beáramló víztorok átmérője
|
G/mm
|
2“
|
|
Kiáramló víztorok átmérője
|
G/mm
|
2“
|
|
Feltöltő szelep átmérője
|
G
|
¾“
|
|
Víz térfogata
|
l
|
205
|
|
Égéstermékek hőmérséklete névleges teljesítménynél
|
°C
|
240
|
|
Égéstermékek hőmérséklete minimális teljesítménynél
|
°C
|
150
|
|
Töltő kamra mérete - mélység
|
mm
|
1150
|
|
Töltő kamra mérete - magasság
|
mm
|
730
|
|
Töltő kamra mérete - szélesség
|
mm
|
575
|
|
Betöltő nyílás mérete (szélesség×magasság)
|
mm
|
575x318
|
|
Tüzelőanyag max. tömege
|
kg
|
150
|
|
Töltő kamra térfogata
|
dm³
|
483
|
|
Zajszint
|
dB
|
54,2
|
|
Maximális bemeneti teljesítmény
|
W
|
140
|
|
Feszültség/frekvencia
|
V/Hz
|
~ 230V / 50Hz
|
A TS 130 hűtő hőcserélő leeresztőszelepe
|
Nyitás hőmérséklete
|
°C
|
95
|
|
Belépő víz hőmérséklete
|
°C
|
4 – 15
|
|
Belépő víz nyomása
|
bar
|
1 – 4
|
EN 303-5: 1999 (MSZ EN 303-5:2000) c. l. 4.2.6 – Emissziós határértékek
A lehető legnagyobb hangsúlyt fektetjük környezetünk védelmére a gyártás folyamán, valamint kazánjaink károsanyag-kibocsátásának folyamatos csökkentésére.
A jelenlegi értékeink már most megfelelnek a 2015-ben érvénybe lépő szabványoknak.
Szilárd tüzelőanyagokkal üzemelő, kézi táplálású, legfeljebb 300 kW névleges teljesítményű kazánok részére meghatározott károsanyag-kibocsátási határértékek, [mg/m³]-ben 10 % O2 mellett. (megj.: a magasabb osztályú besorolás az előnyösebb)
Szabvány szerinti értékek VIGAS 80 esetében mért értékek
| |
1. osztály
|
2. osztály
|
3. osztály
|
|
CO
|
12 500
|
5 000
|
2 500
|
|
OGC
|
1500
|
200
|
100
|
|
Por
|
180
|
150
|
125
|
| |
névleges teljesítménynél
|
|
CO
|
1219 |
|
OGC
|
57 |
|
Por
|
70 |
|
Vigas faelgázosító kazánok
|
|